д. Новосаратовка. 1-комнатная квартира 33,5 кв.м
Адрес: Всеволожский район ЛО, д. Новосаратовка, ул. Первых, д. 4 к. 7, ЖК «Город Первых»






























Жилая площадь:
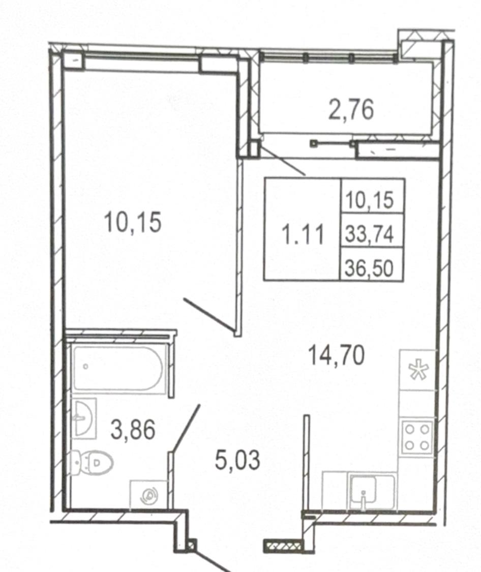
10.1 кв.м
Кол-во комнат:
1
Этаж:
7
Материал стен:
Монолит
Площадь кухни:
14.7 кв.м
Общая информация
Однокомнатная квартира в ЖК «Город Первых», 33,5 м²
📍 д. Новосаратовка, ул. Первых, дом 4, корпус 7
Продаётся абсолютно новая квартира, полностью готовая к комфортному проживанию. Здесь никто ещё не жил — квартира идеально чистая, с полной внутренней отделкой и даже с новой мебелью в кухне и прихожей.
Удобная и современная планировка «евро-двушки»: большая кухня-гостиная 15 м² с выходом на остеклённый балкон, отдельная спальня 10,1 м², просторный санузел и удобная прихожая.
Пространство квартиры организовано так, что при компактной площади всё кажется удобным, продуманным и функциональным.
Новый жилой комплекс комфорт-класса: качественная отделка холлов и подъездов, бесшумные лифты, ухоженная территория.
Отличное решение для жизни или инвестиций: квартира полностью готова к заселению или сдаче в аренду без дополнительных вложений.
Документы в полном порядке, квартира в собственности, прямая продажа.
📞 Позвоните, чтобы приехать на просмотр и убедиться лично — возможно, это именно ваша новая квартира.
Характеристики объекта
- Площадь: 33.5 кв.м
- Жилая площадь: 10.1 кв.м
- Площадь кухни: 14.7 кв.м
- Количество комнат: 1
- Этажность: 22
- Этаж: 7
- Лифт: 2 лифта
- Ремонт: Чистовая отделка, евростандарт
- Санузел: Совмещенный
- Тип балкона/лоджии: Застекленная лоджия
- Год постройки дома: 2024
- Высота потолков: 2.75 м
- Материал окон: Металлопластиковые стеклопакеты
- Материал стен: Монолит
Местоположение
- Адрес: Всеволожский район ЛО, д. Новосаратовка, ул. Первых, д. 4 к. 7, ЖК «Город Первых»
- Метро: Ломоносовская
На карте
4,69 млн. руб.
ID 0002016