м. Черная Речка. 2-комнатная квартира 60,1 кв.м
Адрес: Санкт-Петербург, наб. Черной Речки, д. 12




















































Жилая площадь:
38.1 кв.м
Кол-во комнат:
2
Этаж:
2
Материал стен:
Кирпич
Площадь кухни:
7.9 кв.м
Общая информация
Лучшее предложение среди 2-х комнатных квартир в исторической части района Черная речка!
Удобная локация - 5 минут до метро, рядом парки, 3 остановки на метро до центра города.
Прямая продажа от собственника! Квартира свободна!
Дом кирпичный – «Сталинка», 1959 года постройки, перекрытия железобетонные, высота потолков 3 м! В квартире нет охранных элементов КГИОП!
Общая площадь 60,1 м2!
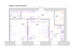
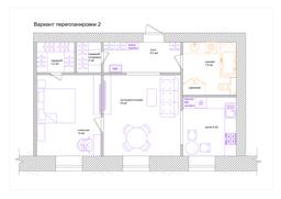
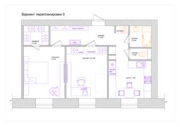
С помощью легкой перепланировки можно сделать уютную 2-х комнатную квартиру с современной планировкой:
• Просторная кухня – 12 м2 • Комнаты – по 15-16 м2 с гардеробными • Вместительная прихожая с местами под хранение • Большой и раздельный санузел с местом под стиральную машину
Состояние – жилое или под ремонт, зависит от Вас.
Фотографии именно этой квартиры.
Документы готовы, быстрый выход на сделку! Любые формы оплаты, подходит под ипотеку. Просмотры по договоренности!
Характеристики объекта
- Площадь: 60.1 кв.м
- Жилая площадь: 38.1 кв.м
- Площадь кухни: 7.9 кв.м
- Количество комнат: 2
- Этажность: 6
- Этаж: 2
- Санузел: Раздельный
- Год постройки дома: 1959
- Высота потолков: 3 м
- Материал окон: Металлопластиковые стеклопакеты
- Материал стен: Кирпич
Местоположение
- Адрес: Санкт-Петербург, наб. Черной Речки, д. 12
- Метро: Черная Речка
На карте

11,49 млн. руб.
ID 1503008
