д. Порицы. Новый коттедж 78,3 кв.м на участке 7 соток
Адрес: Гатчинский район, д. Порицы, КП Гатчина вилладж-2
























Площадь дома:
78.3 кв.м
Площадь участка:
7 сот.
Кол-во комнат:
4
Материал стен:
Утепленный каркас
Фундамент:
Сваи
Коммуникации:
электричество 15 кВт, центральный водопровод (скважина), локальная канализация
Расстояние до КАД:
25 км
Общая информация
Ваш идеальный загородный уголок всего в 10 минутах от Павловска!
Представляем вашему вниманию уютный и современный дом площадью 78 м, расположенный на живописном участке в 7 соток.
Это прекрасная возможность обрести собственное жилье для постоянного проживания или наслаждаться загородной жизнью, оставаясь при этом в непосредственной близости от города.
Дом построен по каркасной технологии, гарантирующей превосходную теплоэффективность и долговечность. Прочный свайный фундамент, надежное утепление стен, пола и перекрытий, а также двухкамерные энергосберегающие стеклопакеты создают идеальный микроклимат для комфортного проживания в любое время года.
Внутри дом полностью подготовлен под чистовую отделку: уже разведено электричество, а стены и перегородки обшиты гипсокартоном. Это значит, что вы можете приступить к финишным работам, минуя этап черновых работ и не переделывая чужой ремонт.
Продуманная планировка для вашего удобства:
-
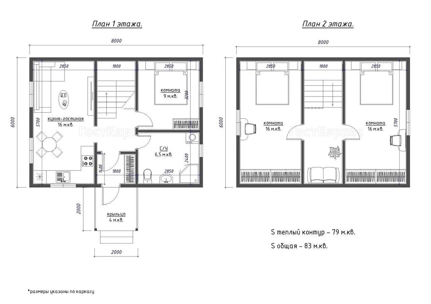
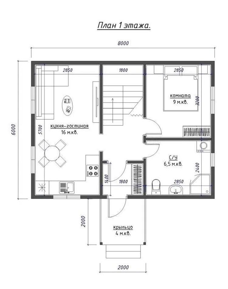
Первый этаж: вас встретит просторная прихожая, уютная кухня-гостиная, отдельная спальня и большой санузел.
-
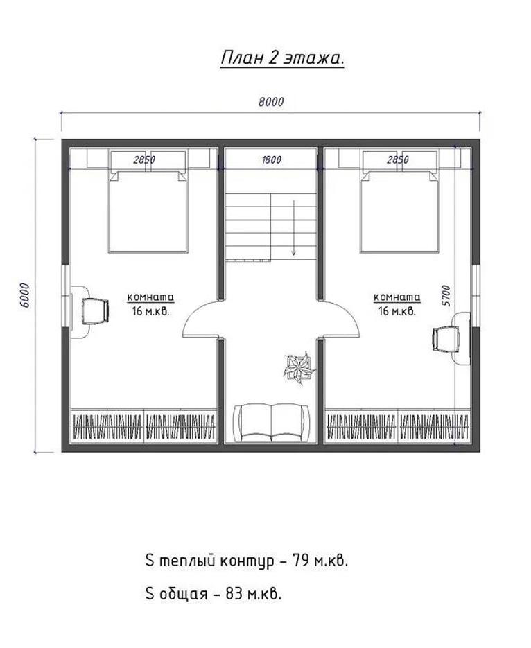
Второй этаж: здесь расположены две изолированные спальни, а также есть возможность обустроить дополнительный санузел или гардеробную по вашему желанию.
Все необходимые коммуникации уже подключены:
-
Электричество 15 кВт
-
Собственная скважина
-
Современная станция биологической очистки сточных вод
Ровный, высокий и сухой участок площадью 7 соток – идеальная основа для воплощения ваших ландшафтных фантазий: будь то пышный сад, уютная терраса или зона для отдыха на свежем воздухе.
Превосходная локация: Всего 10 минут езды отделяют вас от Павловска, а развитая инфраструктура Павловска, Коммунара и Гатчины (школы, детские сады, магазины, поликлиники) делает повседневную жизнь максимально комфортной и доступной.
Дом подходит под семейную ипотеку, что делает его еще более привлекательным.
Не упустите свой шанс!
Если вы ищете новый, теплый и качественно построенный дом недалеко от города, этот вариант определенно заслуживает вашего внимания. Свяжитесь с нами, чтобы договориться о просмотре и увидеть все своими глазами!
Характеристики объекта
- Площадь дома: 78.3 кв.м
- Количество комнат: 4
- Этажность: 2
- Фундамент: Сваи
- Материал стен: Утепленный каркас
- Материал окон: Металлопластиковые стеклопакеты
- Ремонт: Под отделку
- Санузел: Совмещенный
- Год постройки дома: 2025
- Коммуникации: электричество 15 кВт, центральный водопровод (скважина), локальная канализация
Участок
- Категория земель: Земли сельхозназначения
- Разрешенное использование: ДНП
- Площадь участка: 7 сот.
- Рельеф участка: Поле
Местоположение
- Адрес: Гатчинский район, д. Порицы, КП Гатчина вилладж-2
- Расстояние до КАД: 25 км
На карте
4,9 млн. руб.
ID 0606017