д. Заостровье. Дом 140 кв.м на участке 10 соток
Адрес: Ломоносовский район, д. Заостровье, КП «Сергиевское»








Площадь дома:
140 кв.м
Площадь участка:
10 сот.
Кол-во комнат:
4
Материал стен:
Утепленный каркас
Фундамент:
Монолитная бетонная плита
Коммуникации:
электричество 15 кВт, центральный водопровод (скважина)
Расстояние до КАД:
28 км
Общая информация
Мечтаете о загородной жизни в комфорте и стиле? Тогда этот дом — то, что вы искали!
Представляем вашему вниманию просторный дом площадью 140 кв. м в живописном ДНП Сергеевское. Это коттеджный поселок, где царит атмосфера уюта и добрососедства.
Здесь все дома выполнены в едином стиле, что создает гармоничный и привлекательный облик. Многие жители проживают здесь постоянно, наслаждаясь всеми прелестями загородной жизни.
Что вас ждет в ДНП Сергеевское?
-
На территории поселка оборудована отличная спортивная площадка, где можно заниматься спортом на свежем воздухе. А зимой она превращается в настоящий каток, радуя детей и взрослых!
-
Удобный подъезд: до ДНП ведет широкая асфальтированная дорога, так что добраться до дома не составит труда в любое время года.
-
Развитая инфраструктура: вблизи поселка есть все необходимое для комфортной жизни, а также возможность быстро добраться до ближайших магазинов и сервисов.
О доме:
Дом 140 кв.м расположен на участке 10 соток и находится на стадии регистрации. Это отличная возможность приобрести недвижимость по выгодной цене и воплотить в жизнь свои дизайнерские идеи!
Что уже сделано:
-
Надежный фундамент: залита монолитная плита, обеспечивающая прочность и долговечность конструкции.
-
Теплый пол: по всей площади дома залит теплый пол, что гарантирует комфортную температуру в любое время года и экономию на отоплении.
-
Электричество: подведено 15 кВт, что достаточно для всех бытовых нужд.
-
Скважина на участке: глубиной 38 метров, требуется завести воду в дом!
-
Крыша: выполнена из качественной металлочерепицы, что обеспечивает надежную защиту от осадков и долговечность.
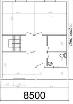
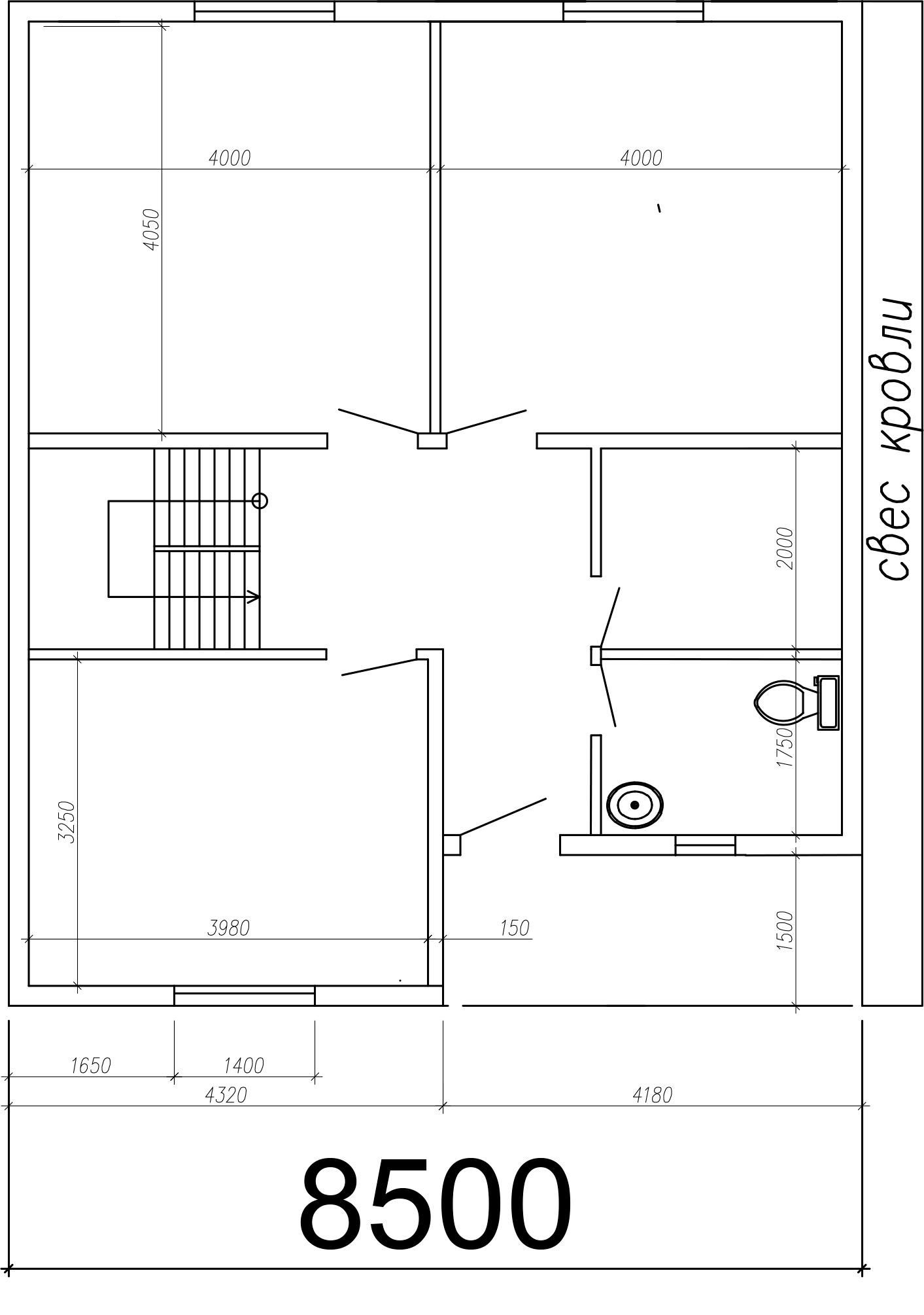
Ваша уникальная возможность: На данном этапе строительства вы можете реализовать свою собственную планировку дома! Это значит, что вы сможете создать идеальное пространство, полностью соответствующее вашим потребностям и предпочтениям.
Мечтаете о просторной гостиной, уютной спальне с гардеробной или функциональном кабинете? Все это возможно!
Не упустите свой шанс стать обладателем дома мечты в ДНП Сергеевское! Звоните прямо сейчас, чтобы узнать подробности и договориться о просмотре!
Характеристики объекта
- Площадь дома: 140 кв.м
- Количество комнат: 4
- Этажность: 2
- Фундамент: Монолитная бетонная плита
- Материал стен: Утепленный каркас
- Материал окон: Металлопластиковые стеклопакеты
- Ремонт: Без отделки
- Год постройки дома: 2026
- Коммуникации: электричество 15 кВт, центральный водопровод (скважина)
Участок
- Категория земель: Земли сельхозназначения
- Разрешенное использование: ДНП
- Площадь участка: 10 сот.
- Рельеф участка: Ровный
- Ограждение участка: Есть
Местоположение
- Адрес: Ломоносовский район, д. Заостровье, КП «Сергиевское»
- Расстояние до КАД: 28 км
На карте
3,9 млн. руб.
ID 1106074